TRETTIO VALOの特徴
住む人のライフステージを
住空間の焦点に
時代とともに、人々の住まいや暮らし方は変わっていきますが、より良い暮らしの本質は変わりません。
冬が長い北欧では、長時間を室内で快適に過ごせるように、住まいのデザインに多くの工夫が施されています。TRETTIOはそんな北欧の考え方をお手本に、自分たちらしいライフスタイルのため、シンプルだけど無駄のないデザインと、自然素材を多く取り入れた空間をお届けしています。
VALO(バロ)はフィンランド語で光を意味します。
自然と共に生きる生活の原点に立ち返り、心地よさを求めて変化する、自分らしく暮らしのプロセスを楽しんでいける、そんな商品化住宅です。
オンとオフの切り替えは
この土間から
エントランスから一直線に伸びた気持ちの良い土間は、VALOの大きな特徴の一つ。
自転車やアウトドア用品の収納、趣味の道具のメンテナンスなど、住む人により自由に使える十分な広さのフリースペースになります。
土間は接するリビングに繋がり、「いってきます」から「おかえりなさい」まで、いつでも家族の存在を感じることができます。





ずっとこの場所に居たくなる…
理由はリビング天井の高さ
くつろぎと安らぎをテーマに低く抑えられた天井高2.2mのリビング天井は、ソファに座ると落ち着くちょうど良い高さとなっています。またこの高さは、横へとつづくダイニングスペースの吹き抜けをダイナミックに演出します。
さらにこの吹き抜けは、ダイニングに解放感を与えるとともに、上下間でも家族の存在を感じさせる役割を果たします。このメインスペースを中心に、家の奥に進むにしたがって、個々のスペースとしてプライバシーが保たれます。



気持ちよく一日をスタートさせる
開放的で明るい空間
家での食事を楽しむ時間が増えたことで、LDKを広くしたい…このダイニングはそんな要望にお応えします。
VALOの顔となる「吹き抜け連窓」は、気持ちの良い一日をスタートさせるための開放的で明るい空間です。
また、キッチン横には大きなダイニングテーブルを置き、家事をしながら子供の宿題を一緒に見てあげたり、パソコンや資料を置いてワークスペースとして使ってみたり、ときには、家族はもちろんお友達が集まって楽しむ場所とすることもできます。
ここが家族の集まる場所、家の中心となるダイニングスペースです。
総二階で四角い箱の家VALOは、必要最小限の間取りと作り付けの家具のみ、インテリアデザインとしても極力シンプルに余白を持って仕上げています。
10年、30年、50年後…いつまでもその時の趣味や、お気に入りの置き家具・小物・絵などで空間を楽しむことができ、長く愛着を持ち住み続けられるような住空間となっています。
奥へと続くプライベートスペースにも細やかな快適性を
ユーティリティーと脱衣室はそれぞれ独立したスぺースを設けて、家族内でのプライバシーや動線配慮がなされた設計です。また個々には十分な収納を設け、生活用品のストックなどをたっぷりと収納することができます。
「快適性」に焦点を置いた設計は、細やかな気配りで住む人の暮らしの質を向上させます。

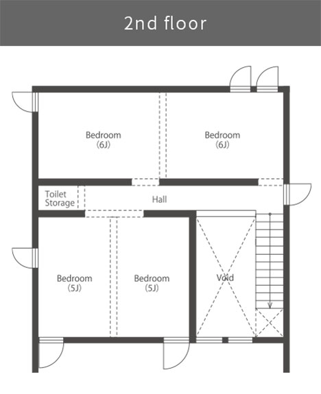
2Fの間取りは
家族一人ひとりのニーズに応え、
フレキシブルに対応
2Fは必要最小限の壁を設けるだけで、間仕切りせずにライフステージの変化や、家族一人ひとりのニーズに応えるフレキシブルな対応をしています。
たとえば、
『 ご夫婦とお子様3人の5人家族では[寝室+ ウォークインクローゼット、洋室が3部屋、家族が多いので2Fにもトイレ]』
『 ご夫婦お2人には[寝室+ ウォークインクローゼット、それぞれ独立したワークスペース、共用部分の書庫]』
など、家族構成や住み方によって「住み始める時」も「住んでから」も自由に変えられる空間となります。
もちろん、それぞれのご要望に沿うようにいくつかのプランバリエーションのご用意もありますので、安心してお任せください。


すべての年代の方から愛される家を
前述のように、VALOは印象的な総二階成形のエレベーション(外観)です。
四角い箱のような飽きのこない、誰からも愛されるようなカタチを目指しました。
家の象徴になるシンボルツリーも出迎えてくれます。
また、お家の裏側には嬉しいデッキも完備。キッチンから続く動線上に出窓を設け、内と外をスムーズにつなぎ、アウトリビングを楽しむことができます。

TRETTIOのステップ
比べて選んで決めていく
TRETTIOの家づくりはご自身の暮らしにあったプランを見つけて選ぶところから始まります。
あらかじめ用意されている間取りを選ぶことで時間を有効に使え、その分こだわりたい部分に時間をかけてじっくり話し合えます。
建築に必要な費用が分かるので、間取りを決めてから価格や広さなど希望に合った土地を選びやすいのも魅力です。
「好きな間取りを選ぶ→好みの生活アイテムを選ぶ→価格を出してみる」。
ご希望ご予算に合わせた家づくりを、楽しく学んで簡単に!
スタイル・タイプ・間取りを選ぶ

ALKU・GRAD・VALO
エネルギーを選ぶ

電化・ガス
あなたらしさをプラス

家具・ファブリック・ZEH・オプション
家を価格を出す。

建築費の金額
TRETTIO VALO 2Fの
間取り例
床面積 / 1F 50.51㎡(15.28坪) 2F 45.53㎡(13.77坪)
延床面積 / 96.04㎡(29.05坪)
全8プランをご用意。
未来へ伝えるインテリア基準
※タイプにより選択できるスタイルが異なります。
未来へ伝えるデザイン基準
TRETTI VALOの
インテリアコーディネート
標準仕様
外装材から住宅設備まで洗練されたデザインの基本装備、TRETTIOならではのハイスペックな仕様をご用意しております。
裸足で歩きたくなる無垢の床材も、世界で愛される名作も、TRETTIOなら標準装備。































